國盛產投·寶山藥谷作為2021年上海市重大工程項目、“十四五”期間上海科技創新中心建設重點項目、寶山區打造上海科創中心主陣地重點項目、北上海生物醫藥產業園區示范性啟動項目,是上海國盛集團“基金+基地+產業+智庫”投融資模式創新的實踐樣板,由上海國盛產業轉型投資管理有限公司作為基金管理人發起設立園區專項基金投資建設。
項目位于寶山區羅店鎮羅店工業園區核心位置,東至潘涇河生態廊帶、南至練祁河、西至潘涇路、北至白塘河,三面環水,周邊環境優美。
總體規劃面積約200畝,總投資約18億元。其中一期占地約100畝,總建筑面積約14.6萬平方米。
重點發展高附加值的“生物制品、醫療器械、原創新藥”制造,導入企業總部、研發中心、高端生產以及產業鏈關鍵環節。
A-效果圖
技術參數 Technical Parameter
|
耐火等級 Fire rating |
丙類,二級 Class C,Grade 2 |
|
消防系統 Fire fighting system |
室內消火栓、噴淋系統 Fire hydrant and Automatic sprinkler system |
|
屋面防水等級 Roof waterproofing standa |
Ⅰ級 Grade Ⅰ |
|
柱體間距 Span/m |
6*8.1 |
|
電梯井道尺寸 Lift shaft/mm |
客梯Passenger lift:1600*1500 貨梯Goods lift:1900*2300 |
|
電梯載重 Load/t |
客梯Passenger lift:1 貨梯Goods lift:2 |
|
樓面荷載 Ground load/kg/㎡ |
首層Ground floor:1000 標準層Typical floor:500 |
|
總建筑面積 Workshoparea/㎡ |
2267.8 |

B-效果圖

技術參數Technical Parameter
|
耐火等級 Fire rating |
丙類,二級 Class C,Grade 2 |
|
消防系統 Fire fighting system |
室內消火栓、噴淋系統 Fire hydrant and Automatic sprinkler system |
|
屋面防水等級 Roof waterproofing standa |
Ⅰ級 Grade Ⅰ |
|
柱體間距 Span/m |
8*8.5 |
|
電梯井道尺寸 Lift shaft/mm |
客梯Passenger lift:1600*1500 貨梯Goods lift:1900*2300 |
|
電梯載重 Load/t |
客梯Passenger lift:1 貨梯Goods lift:2 |
|
樓面荷載 Ground load/kg/㎡ |
首層Ground floor:2000 標準層Typical floor:800 |
|
總建筑面積 Workshoparea/㎡ |
3969.0 |
剖面圖PROFILE
C1-效果圖

技術參數Technical Parameter
耐火等級
Fire rating
丙類,二級
Class C,Grade 2
消防系統
Fire fighting system
室內消火栓、噴淋系統
Fire hydrant and Automatic sprinkler system
屋面防水等級
Roof waterproofing standa
Ⅰ級
Grade Ⅰ
柱體間距
Span/m
8*8
電梯井道尺寸
Lift shaft/mm
客梯Passenger lift:1600*1500
貨梯Goods lift:1900*2300
電梯載重
Load/t
客梯Passenger lift:1
貨梯Goods lift:2
樓面荷載
Ground load/kg/㎡
首層Ground floor:2000
標準層Typical floor:1000
總建筑面積
Workshoparea/㎡
18795.4
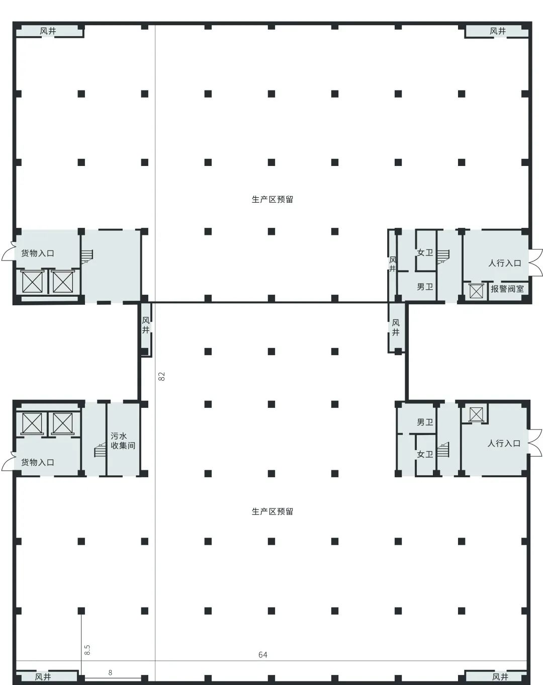
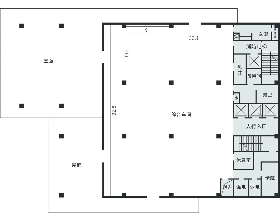
平面圖THE FLOOR PLAN
剖面圖PROFILE

C2-效果圖

技術參數Technical Parameter
耐火等級
Fire rating
丙類,二級
Class C,Grade 2
消防系統
Fire fighting system
室內消火栓、噴淋系統
Fire hydrant and Automatic sprinkler system
屋面防水等級
Roof waterproofing standa
Ⅰ級
Grade Ⅰ
柱體間距
Span/m
8*8.5
電梯井道尺寸
Lift shaft/mm
客梯Passenger lift:1600*1500
貨梯Goods lift:1900*2300
電梯載重
Load/t
客梯Passenger lift:1
貨梯Goods lift:2
樓面荷載
Ground load/kg/㎡
首層Ground floor:2000
標準層Typical floor:1000
總建筑面積
Workshoparea/㎡
19835.9
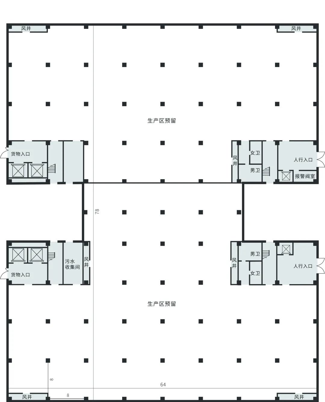
平面圖THE FLOOR PLAN

剖面圖PROFILE

C3-效果圖

技術參數Technical Parameter
耐火等級
Fire rating
丙類,二級
Class C,Grade 2
消防系統
Fire fighting system
室內消火栓、噴淋系統
Fire hydrant and Automatic sprinkler system
屋面防水等級
Roof waterproofing standa
Ⅰ級
Grade Ⅰ
柱體間距
Span/m
8*8
電梯井道尺寸
Lift shaft/mm
客梯Passenger lift:1600*1500
貨梯Goods lift:1900*2300
電梯載重
Load/t
客梯Passenger lift:1
貨梯Goods lift:2
樓面荷載
Ground load/kg/㎡
首層Ground floor:2000
標準層Typical floor:1000
總建筑面積
Workshoparea/㎡
19835.9
平面圖THE FLOOR PLAN

剖面圖PROFILE
C4-效果圖

技術參數Technical Parameter
耐火等級
Fire rating
丙類,二級
Class C,Grade 2
消防系統
Fire fighting system
室內消火栓、噴淋系統
Fire hydrant and Automatic sprinkler system
屋面防水等級
Roof waterproofing standa
Ⅰ級
Grade Ⅰ
柱體間距
Span/m
8*8
電梯井道尺寸
Lift shaft/mm
客梯Passenger lift:1600*1500
貨梯Goods lift:1900*2300
電梯載重
Load/t
客梯Passenger lift:1
貨梯Goods lift:2
樓面荷載
Ground load/kg/㎡
首層Ground floor:2000
標準層Typical floor:1000
總建筑面積
Workshoparea/㎡
10903.6
平面圖THE FLOOR PLAN

剖面圖PROFILE

T1-效果圖

技術參數Technical Parameter
耐火等級
Fire rating
丙類,二級
Class C,Grade 2
消防系統
Fire fighting system
室內消火栓、噴淋系統
Fire hydrant and Automatic sprinkler system
屋面防水等級
Roof waterproofing standa
Ⅰ級
Grade Ⅰ
柱體間距
Span/m
9*10.5
電梯井道尺寸
Lift shaft/mm
客梯Passenger lift:1600*1500
電梯載重
Load/t
客梯Passenger lift:1
樓面荷載
Ground load/kg/㎡
1-4層、9層1st-4th&9th floor:500
5-8層5-8th floor:650
總建筑面積
Workshoparea/㎡
10963.8
平面圖THE FLOOR PLAN

剖面圖PROFILE

